Requalifier les centres commerciaux en milieux de vie complets
Plusieurs centres commerciaux sont envisagés comme des leviers pour créer de nouveaux milieux de vie complets. Ces projets de requalification appellent à la coopération de la municipalité et du porteur de projet, des acteurs aux intérêts distincts qui sont appelés à avancer ensemble.
Comment instaurer une coopération porteuse, capable de concilier exigences publiques et impératifs économiques privés afin de concrétiser des projets ambitieux, réalistes et viables?
-
Collection Passer à l’action
La collection « Passer à l’action » regroupe des fiches techniques, des études de cas et des outils pratiques à l’intention des décideurs et des professionnels prêts à poser des gestes concrets pour développer des collectivités viables, partout au Québec.
La collection « Passer à l’action » regroupe des fiches techniques, des études de cas et des outils pratiques à l’intention des décideurs et des professionnels prêts à poser des gestes concrets pour développer des collectivités viables, partout au Québec.
Date de publication 24 mars 2026Date de mise à jour 31 mars 2026 -
Thèmes associés
Un levier stratégique pour densifier et revitaliser les milieux de vie
Formule autrefois incontournable des zones périurbaines, le centre commercial est aujourd’hui appelé à se réinventer. En effet, il fait face à l’essor du commerce en ligne, qui fait décliner sa fréquentation, à des dépenses élevées pour mettre aux normes les bâtiments vieillissants et pour entretenir des aires de stationnement sous-utilisées, ou encore à l’évolution de son modèle d’affaires.
De nombreuses municipalités sont interpellées pour travailler sur des projets de requalification de centres commerciaux. Ces centres sont souvent identifiés dans les planifications régionales et métropolitaines comme des sites à fort potentiel de densification, notamment en raison:
-
de leur taille et de leur emplacement stratégique au cœur de milieux habités;
-
de la sous-utilisation de l’espace;
-
de leur détention par une organisation propriétaire unique.
Les centres commerciaux offrent ainsi l’occasion de répondre à plusieurs grandes priorités municipales: la maîtrise de l’étalement urbain, l’accroissement de l’offre en habitation, la lutte contre les îlots de chaleur et la recherche de nouvelles retombées fiscales. Malgré sa complexité, la transformation des centres commerciaux constitue donc un levier stratégique majeur pour créer de nouveaux milieux de vie complets.
Vue 3D du futur Espace Canevas à Gatineau. Source: Brigil
Une occasion à saisir pour recréer des milieux de vie complets
Centre commercial avant transformation

Potentiel de transformation vers un milieu de vie complet

Source: Vivre en Ville
Acteurs de la requalification et cadres de négociation
Le terme « porteur de projet » désigne l'organisation responsable de la requalification d’un centre commercial. Cette organisation peut varier selon le type de projet et les phases de développement. Elle peut être la propriétaire du site ou une partenaire de promotion immobilière. Quel que soit l’interlocuteur des municipalités, les impératifs de rentabilité des projets immobiliers influencent directement les marges de manœuvre, les calendriers et les compromis possibles dans les processus de négociation.
Trois bonnes pratiques pour une coopération fructueuse sur le long terme
La requalification d’un centre commercial s’inscrit dans un horizon de 15 à 30 ans et traverse plusieurs cycles économiques, immobiliers et politiques. Or, pour le porteur de projet, le marché évolue rapidement. Tout peut fluctuer: la demande pour certains types d’habitation, les besoins en superficies commerciales ou de bureaux, les coûts des matériaux et de la main-d’œuvre, les conditions de financement. La capacité d’absorption du marché est, quant à elle, limitée: la construction trop rapide ou la programmation d’usages qui s’avèreront inadéquats peuvent fragiliser l’équilibre financier d’une opération de longue haleine. Un projet bien planifié, mais trop rigide peut s'avérer irréalisable quelques années plus tard.
Du côté municipal également, les priorités collectives et les attentes de la population évoluent avec le temps. Par ailleurs, à mesure que les projets avancent, l’expertise se développe et de nouveaux apprentissages peuvent conduire à des réajustements bénéfiques.
Dans ce contexte, la coopération entre le porteur de projet et la municipalité doit permettre d’articuler deux impératifs:
-
le maintien d'une vision cadre pour le devenir du site à terme;
-
une souplesse constante pendant la réalisation du projet.
Les trois bonnes pratiques suivantes proposent des repères pour y parvenir.
Bonne pratique 1: Comprendre son interlocuteur et les contraintes du site
Un projet de requalification réaliste repose sur une compréhension fine de son contexte. Dans le cas d’une transformation de centre commercial, cela suppose de cerner les besoins du porteur de projet privé et les contraintes du site, parfois peu visibles, qui influencent le potentiel de transformation à court, moyen et long termes.
Le type de porteur de projet et la performance économique du centre commercial
Le profil du porteur de projet est un indice précieux pour anticiper ses motivations, ses contraintes et sa tolérance au risque, mais aussi pour préparer la coopération.
Certains propriétaires se trouvent dans une logique d’investissement (p. ex. fond de placement immobilier, caisse de retraite) et visent la performance économique de leur actif à long terme à travers les revenus locatifs générés par le centre commercial et la diversification de ces revenus, par exemple avec de l’immobilier résidentiel1. D'autres propriétaires ont davantage une approche de promotion immobilière: ils ont acquis le site précisément en vue de le transformer. Leur stratégie repose principalement sur la création de valeur engendrée par la requalification.
La stratégie d’un porteur de projet est par ailleurs étroitement liée à la performance économique du centre commercial dont il est question. Un site en déclin n’entraîne pas les mêmes arbitrages qu’un centre performant générant des revenus stables.
Les contraintes commerciales invisibles
Certaines contraintes opérationnelles liées au fonctionnement quotidien d’un centre commercial peuvent rendre difficiles, voire impossibles, des transformations souhaitables, telles que la modification des accès au site, la réorganisation du stationnement et des zones de livraison, ou la gestion des matières résiduelles.
D’autres contraintes sont formalisées dans les baux des locataires commerciaux, notamment ceux des grandes bannières, qui sont conclus pour des périodes pouvant s’étendre sur plusieurs décennies. Au-delà de la location d’un local donné, ces contrats peuvent imposer des exigences quant à sa visibilité, à la concurrence, à la quantité et à l’emplacement du stationnement, entre autres. Associés à des pénalités financières pouvant remettre en cause la viabilité d’une requalification, ces baux influencent fortement la marge de manœuvre de l’organisation propriétaire sur l’évolution du site.
La trajectoire de transformation envisagée
La requalification peut prendre différentes formes: démolition complète et reconstruction, ajout de bâtiments sur des aires de stationnement, ou transformation progressive avec maintien partiel du centre commercial. Parfois, c’est la perspective d’une coûteuse remise aux normes des bâtiments qui encourage les propriétaires à privilégier un projet de requalification plutôt qu’à entreprendre des travaux de rénovation. Comprendre la trajectoire envisagée permet à la municipalité d’ajuster ses attentes et ses leviers d’intervention.
Bonne pratique 2: Clarifier les objectifs municipaux et se doter de grandes orientations d’aménagement
Même lorsque l’impulsion de requalifier le centre commercial vient du porteur de projet, la municipalité veille à ce que le projet contribue à l’intérêt collectif et qu’il s’inscrive à la fois dans la structure urbaine et dans la vision d’aménagement à l’échelle de la ville.
S’appuyer sur un diagnostic partagé à l’interne et avec la communauté
Avant même de formuler des orientations, la concertation entre les services municipaux et avec le conseil municipal est une occasion d’échanger sur:
-
les contraintes techniques (p. ex. la capacité des infrastructures);
-
les impacts financiers et les investissements nécessaires;
-
et les besoins actuels et futurs auxquels la transformation pourrait répondre.
Ce travail contribue à assurer une cohérence interne, essentielle pour parler d’une seule voix lors des discussions avec l’organisation porteuse de projets. Le dialogue avec les parties prenantes et la communauté enrichit ensuite ce diagnostic avec leurs besoins (p. ex. la présence de services essentiels), ainsi que le rôle actuel du centre commercial pour elles (p. ex. la socialisation).
Un atelier municipal participatif. Source: Vivre en Ville
Définir les grandes orientations d’aménagement
La municipalité gagne à préciser en amont les orientations que tout scénario devra respecter et qui serviront de repères pour encadrer les discussions sur le long terme. Il ne s'agit pas d'en arriver à un concept d'aménagement formel, mais d'établir des objectifs de développement à la fois généraux et explicites.
Par exemple, les orientations d’aménagement pourraient porter sur:
-
la future vocation du site et son rôle au sein la municipalité;
-
la connexion à la trame de rues existante et le désenclavement du site actuel;
-
l’accessibilité par les modes de déplacement actifs et collectifs;
-
l’intégration de logements à but non lucratif ou abordable;
-
le maintien de certains commerces ou services;
-
la création d’espaces publics et le verdissement;
-
la possibilité de réserver des emplacements pour des équipements collectifs ou des services publics (p. ex. un centre communautaire, une école, une bibliothèque).
Certains aménagements complémentaires gagnent à être planifiés sur l’espace public ou sur des terrains privés à proximité du centre commercial. En cadrant la réflexion à une échelle plus large que celle du site, les orientations d’aménagement assurent la cohérence des transformations à long terme et en maximisent les retombées.
Mobiliser les leviers municipaux
Si un projet de requalification constitue une priorité pour elle, la municipalité peut également identifier les actions qu’elle est prête à poser pour soutenir ou inciter la transformation du centre commercial.
Elle peut notamment:
-
mettre en place des mécanismes financiers incitant la requalification, pouvant inclure des programmes de soutien à l'aménagement de nouvelles infrastructures urbaines sur le site ;
-
améliorer l’accessibilité au site, à travers un projet de transport collectif ou un réseau cyclable ;
-
évaluer la capacité des infrastructures municipales et planifier leur mise à niveau en fonction des nouveaux besoins générés par le projet, le cas échéant.
En démontrant qu’elle s’engage dans la réussite du projet, la municipalité renforce la cohérence entre ses orientations et ses actions et consolide sa crédibilité auprès du porteur de projet.
Requalifier sans perdre de vue les centralités existantes
Les centres commerciaux font souvent concurrence aux commerces de la centralité traditionnelle de leur territoire, comme une rue principale ou un centre-ville, qui se trouve parfois en difficulté. La conservation de commerces conjuguée à la forte croissance résidentielle et parfois à l’ajout d’autres activités et services risque d'amplifier cette rivalité.
Les municipalités gagnent donc à positionner ces projets dans une réflexion plus large sur les rôles et vocations de la centralité existante et du nouveau milieu de vie. C'est dans le dosage des activités, des densités et du caractère du nouveau milieu que se joue l'équilibre entre opportunité de croissance et vitalité de la centralité existante.
Le centre-ville de Trois-Rivières. Source: Vivre en Ville
Bonne pratique 3: Encadrer le projet avec des balises claires, sans le figer
Comment encadrer la transformation sans figer un projet appelé à évoluer sur de nombreuses années? Pour pouvoir se concrétiser, la requalification d’un centre commercial répond aux besoins:
-
de la municipalité, qui cherche des garanties quant à la prise en compte de ses orientations d’aménagement;
-
du porteur de projet, qui cherche à la fois une rentabilité, un respect de ses contraintes, de la prévisibilité et une marge de manœuvre pour s’adapter au fil du temps.
La coopération repose sur la reconnaissance de ces besoins parallèles et sur la capacité à établir un équilibre entre les deux. L’objectif n’est pas d’éliminer les incertitudes, car elles sont inhérentes à ce type de projet, mais plutôt de se doter d’un cadre commun suffisamment clair pour permettre le démarrage du projet tout en considérant d’emblée sa mise en œuvre par phases et les défis associés.
Concrétiser les orientations dans un concept d’aménagement évolutif
Les grandes orientations d’aménagement se traduisent dans un outil partagé entre la municipalité et le porteur de projet. Cet outil prend généralement la forme d’un plan concept d’aménagement élaboré de manière collaborative.
Ce plan prévoit:
-
des balises concrètes et détaillées qui permettent de démarrer la première phase en confiance;
- les gestes structurants pour guider les phases ultérieures et assurer la cohérence à long terme, notamment la trame viaire, la structure des îlots, la localisation des espaces publics, la répartition des usages et des densités et l’implantation des bâtiments, mais sans adopter, à ce stade, les règlements correspondants;
- les trajectoires d’évolution possibles, pour conserver une marge de manœuvre dans l’évolution du projet.
Différents outils urbanistiques peuvent être mobilisés pour formaliser ce cadre:
-
l’inscription des grandes orientations au plan d’urbanisme, voire au schéma d’aménagement;
-
un programme particulier d’urbanisme (PPU);
-
une stratégie réglementaire adaptée aux spécificités du projet, qui énonce les objectifs et les critères souhaités par la municipalité auxquels devront se conformer les porteurs de projet, tout en laissant place à la négociation, par exemple au moyen d’un plan d’aménagement d’ensemble (PAE) ou d’une combinaison d’outils tels qu’un plan d’implantation et d’intégration architecturale (PIIA) et un projet particulier de construction, de modification ou d’occupation d’un immeuble (PPCMOI).
Ces outils peuvent être complétés par un accord de développement pour préciser la répartition des responsabilités et des investissements à chaque étape de la requalification.
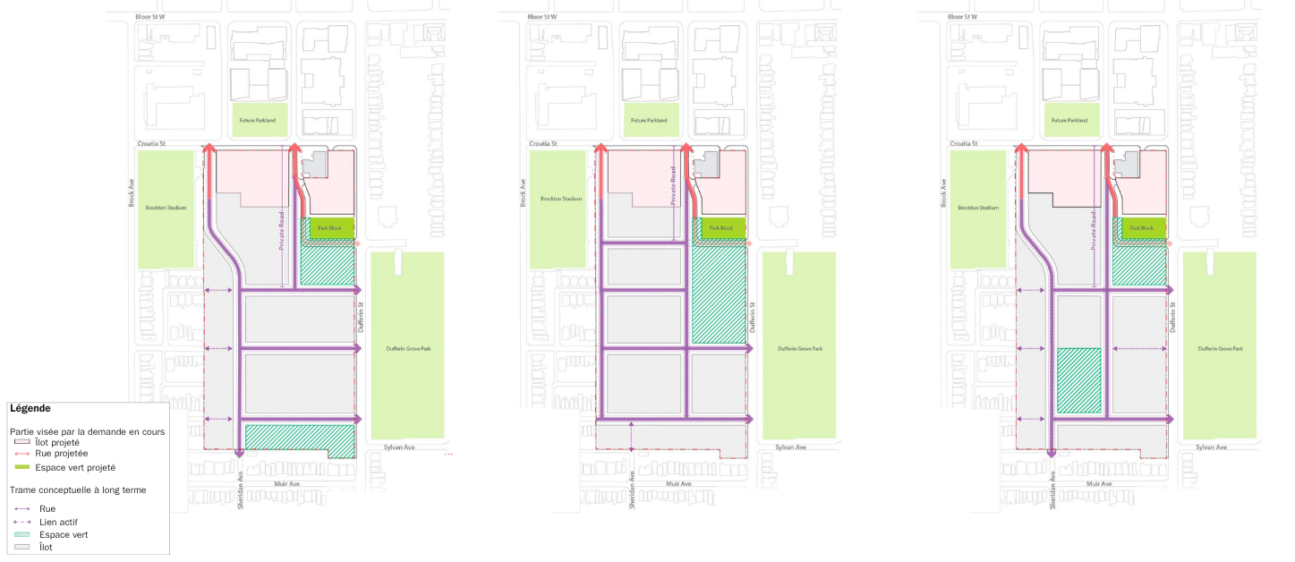
Illustrer les différents scénarios envisagés
Source: Urban Strategies Inc.
Pour planifier un projet capable d’évoluer dans le temps, une solution consiste à explorer plusieurs futurs possibles. La Ville de Toronto évalue les projets de requalification de centres commerciaux à partir de scénarios montrant, par exemple, des variations dans les connexions aux rues existantes ou dans les implantations d'un espace public structurant. L'objectif est de démontrer que la vision d'ensemble reste cohérente et viable, quelle que soit la trajectoire retenue2.
Faciliter les échanges en parlant d’une seule voix
La désignation d’une équipe dédiée ou d’une personne-ressource au sein de l’administration municipale simplifie les échanges avec le porteur de projet. Elle consolide les arbitrages internes en amont, évite les messages contradictoires entre services et assure une meilleure continuité lors des changements d’administration.
Clarifier la répartition des responsabilités
Pour progresser vers la mise en œuvre, une compréhension partagée des responsabilités et des investissements est aussi essentielle. Elle suppose de convenir de réponses aux questions suivantes notamment:
-
Qui assumera la construction des rues et des espaces publics?
-
Quels investissements publics sont envisagés pour les infrastructures, la mobilité ou les équipements collectifs? À quel moment sont-ils prévus? À quelles conditions?
-
Quels seront les rôles respectifs dans le cadre d’activités de participation publique?
Aborder ces questions en amont permet de réduire les zones d’ambiguïté et d’avancer avec davantage de confiance. L’accord peut être formalisé dans un accord de développement entre la municipalité et le porteur de projet. Distinct des mécanismes prévus par la Loi sur l’aménagement et l’urbanisme, cet outil contractuel est particulièrement intéressant pour clarifier les engagements financiers de chaque partie en fonction des phases du projet.
L'ambiguïté entre espaces publics et privés
Dans les centres commerciaux, les espaces privés jouent le rôle d’espaces publics, tant pour la circulation (rues) que pour les rencontres (places). Avec l’arrivée de nouveaux résidents, le besoin d’espaces publics moins contraints (horaires d’ouverture ou contrôles aux entrées) s’accentue. La question du partage entre propriété privée et domaine public, en surface comme en sous-sol, peut générer des défis techniques et réglementaires. Ceux-ci concernent notamment la gestion et l’entretien des rues, l'organisation d’animations commerciales ou encore les droits de propriété (p. ex. droits superficiaires, servitudes).
Les espaces publics de Pike & Rose (North Bethesda, Maryland). Source: David Burroughs
Le phasage, plus qu’un rythme opérationnel, une stratégie pour la réussite du projet
Même dans un contexte de coopération soutenue entre le porteur de projet et la municipalité, la requalification d’un centre commercial reste un exercice complexe. C'est au moment de la définition du phasage que se matérialisent la plupart des défis: rigidité des baux commerciaux, modifications réglementaires, longues périodes de chantier, viabilité financière, arrivée de nouvelles activités et de nouveaux résidents. Les municipalités qui en sont conscientes dès le départ seront mieux outillées pour faire preuve de la souplesse qu'exigent ces projets de longue haleine.
Le phasage planifie les réponses à ces défis non seulement en les séquençant dans le temps, mais en faisant évoluer les réponses d’une phase à l’autre. Il prévoit les étapes de travaux, la répartition des rôles et des responsabilités entre les acteurs privés et la municipalité, ainsi que la temporalité des modifications réglementaires. Cette dernière dimension est particulièrement délicate: le zonage décrit un état souhaité à un moment précis, alors que le projet évolue sur plusieurs années. L’application de règlements normatifs soulève des arbitrages complexes entre la vision à terme et l'état réel à chaque phase.
Face à ces défis, certaines questions demeurent inévitablement sans réponse au démarrage du projet. Une coopération étroite, une grande agilité entre les parties prenantes, ainsi qu’une posture d’innovation sont les clés de succès qui s’établissent dès la réflexion sur le phasage puis tout au long de la mise en œuvre.
La complexité réglementaire d’un projet évolutif: l’exemple du stationnement
Un projet fictif de requalification prévoit la transformation progressive d’une vaste aire de stationnement en îlots mixtes comprenant logements, commerces et espaces publics. Un immeuble résidentiel sera construit dans la première phase. Le règlement de zonage en vigueur s’applique alors, et le nombre minimal de cases est calculé selon les usages à court terme, sans tenir compte des phases ultérieures. Or, dans une vision d’ensemble, les besoins futurs en stationnement devraient diminuer, puisque la densification, la mixité des usages et l’amélioration du transport collectif réduisent la dépendance à l’automobile.
À quel horizon la municipalité doit-elle se référer? Doit-elle ajuster dès maintenant le zonage en fonction de la vision à long terme, ou exiger les normes de la première phase, quitte à créer un surplus temporaire? A-t-elle intérêt à modifier sa réglementation à chaque étape, au risque d’alourdir les démarches et d’accroître l’incertitude?
Ces arbitrages, dans des projets déployés sur plusieurs années, sont délicats, d’autant que le contexte économique, politique et social peut évoluer. Et ces tensions dépassent le stationnement: elles concernent aussi les contributions aux fins de parc, l’emplacement des espaces publics ou la création de nouvelles rues. Les projets en cours au Québec permettront d’explorer différentes options pour éclairer les démarches futures.
Le phasage: anticiper les défis ponctuels vers la réussite du projet à terme
Le tableau ci-dessous met en lumière quelques défis afin de limiter les angles morts, les surprises et les incompréhensions tout au long du projet. L’objectif n’est pas de tout prévoir ni de tout réglementer en amont, mais plutôt d’imaginer des solutions propres à chaque défi rencontré. Quelques pistes sont proposées dans le tableau suivant.
Reconnecter le site à son contexte élargi et diminuer la dépendance à l’automobile
Les centres commerciaux sont souvent entourés d’un milieu déjà urbanisé, mais dans des secteurs à grande circulation. Les sites sont donc enclavés par rapport aux quartiers environnants, généralement à dominante résidentielle, et nécessitent des interventions pour connecter le futur milieu de vie à son environnement.
| Défis potentiels liés à l’élaboration ou la mise en œuvre du phasage | Quelques pistes de réflexion possibles |
|
Défis municipaux:
Défis partagés:
|
|
Intégrer de nouvelles activités tout en assurant une bonne cohabitation avec l’offre commerciale existante
La création d’un milieu de vie complet implique l’introduction de nouveaux usages au sein d’un site à dominante commerciale.
| Défis potentiels liés à l’élaboration ou la mise en œuvre du phasage | Quelques pistes de réflexion possibles |
|
Défis privés:
Défis partagés:
|
Encourager le porteur de projet à :
|
Maintenir la viabilité économique du projet sans baisser les exigences de création d’un milieu de vie complet
Pour assurer le succès du projet, il est essentiel de préserver sa rentabilité, en particulier celle de la première phase, qui conditionne la viabilité globale de l’opération.
| Défis potentiels liés à l’élaboration ou la mise en œuvre du phasage | Quelques pistes de réflexion possibles |
|
Défis privés:
Défis municipaux:
|
|
S’assurer de l’acceptabilité sociale
La requalification d’un centre commercial transforme un lieu souvent ancré dans la vie communautaire comme lieu de rencontre sécurisant. Cette transformation peut susciter des réticences tant chez certains usagers attachés au site que chez les résidents des secteurs voisins.
| Défis potentiels liés à l’élaboration ou la mise en œuvre du phasage | Quelques pistes de réflexion possibles |
Défis partagés:
|
|
L’exemple de Fleur de Lys à Québec
L’aménagement d’un milieu de vie complet. Source: Groupe A / Annexe U
Le centre commercial Fleur de Lys à Québec, acquis en 2018 par le Groupe Trudel, fait l’objet d’un vaste projet de transformation visant à en faire un milieu de vie complet, comprenant à terme des logements, une offre commerciale diversifiée et un pôle institutionnel. Cette requalification constitue un exemple de collaboration soutenue entre la municipalité et le groupe promoteur, qui repose notamment sur trois éléments clés:
-
Dès le départ, la Ville et le promoteur ont arrimé leurs démarches de planification. En parallèle de l’élaboration d’un PPU par la Ville de Québec, le promoteur a mené des activités de concertation auprès de multiples parties prenantes pour alimenter son plan directeur 3.
-
Plusieurs stratégies ont été mises en place afin de maintenir une offre commerciale et de garder le site actif pendant les travaux4.
-
Une stratégie d’autorisation réglementaire en deux temps a été déployée: des modifications de zonage ont d’abord été adoptées pour la première phase afin de permettre un démarrage rapide du projet, tout en laissant le temps d’élaborer une révision réglementaire globale pour les phases subséquentes5.
Pour en savoir plus:
- [À venir] Classe de maîtres: Transformations de centres commerciaux, Défis et leviers de négociation entre municipalités et acteurs privés avec Eric Turcotte de Urban Strategies.
- Les cas l’espace Canevas à Gatineau et de Pike & Rose dans le Maryland présentés dans le répertoire cartographique «Optimisation des milieux de vie». Ce dernier présente des cas inspirants d’ici et d’ailleurs, dont de nombreux portent sur des requalifications.
Cette fiche a été alimentée par les travaux d’une communauté de pratique réunissant des professionnel·les de la promotion et de la conception engagé·es dans des projets de requalification de centres commerciaux. Vivre en Ville remercie leur riche contribution.
Références:
DUBUC, André (2021). «Propriétaires de centres commerciaux: Est-ce le temps d’investir ? », La Presse, [En ligne], (consulté le 18 février 2025) et BRAULT, Marie-Soleil (2022). «Quel avenir pour les centres commerciaux? », Le Soleil, [En ligne], (consulté le 18 février 2025)
TURCOTTE, Eric (2026). «Défis et leviers de négociation entre municipalités et acteurs privés: Le cas de la requalification de centres commerciaux ». Communication présentée lors d’une classe des maîtres, Vivre en Ville, 21 janvier 2026.
VILLE DE QUÉBEC et GROUPE A/ANNEXE U (2024). «Reconstruire la ville sur la ville un centre commercial à la fois», conférence donnée dans le cadre du congrès de l'Ordre des urbanistes du Québec. [Vidéo] (consulté le 16 mars 2025).
TRUDEL ALLIANCE (2021). « Revitalisation de Fleur de Lys : Modification réglementaire Ville de Québec, Règlement R.V.Q. 2994», Ville de Québec, [En ligne], (consulté le 18 février 2025) et SIMARD, Martin (2024). «La requalification de centres commerciaux de banlieue en Amérique Du Nord le cas de la Place Fleur de Lys à Québec», Revue Organisations & Territoires, 33(3), 207–222. [DOI]
VILLE DE QUÉBEC (2021). «Sommaire décisionnel: R.V.Q. 2994». Ville de Québec. [en ligne] (consulté le 18 février 2025)
Projet «Optimiser l'urbanisation»
Ce contenu a été créé dans le cadre des activités du projet «Optimiser l'urbanisation», réalisé grâce à l'aide financière du ministère des Affaires municipales et de l’Habitation.
